Sistema Nuño III
Perfil principal em alumínio
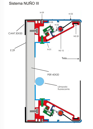
Referência:
N-01
Descrição:
Perfil principal em alumínio.
Características:
Barras com 6 metros.
Desconto comercial não atribuído.
Por favor contacte o seu gestor comercial.
Por favor contacte o seu gestor comercial.